
Little
Hammond School
Campus Master Plan
Columbia, South Carolina
Project Type
K-12 Schools
Size
Campus Master Plan
Design Services
Planning

Hammond School charts a path toward campus unification and student-centered innovation with a bold Facilities Master Plan.
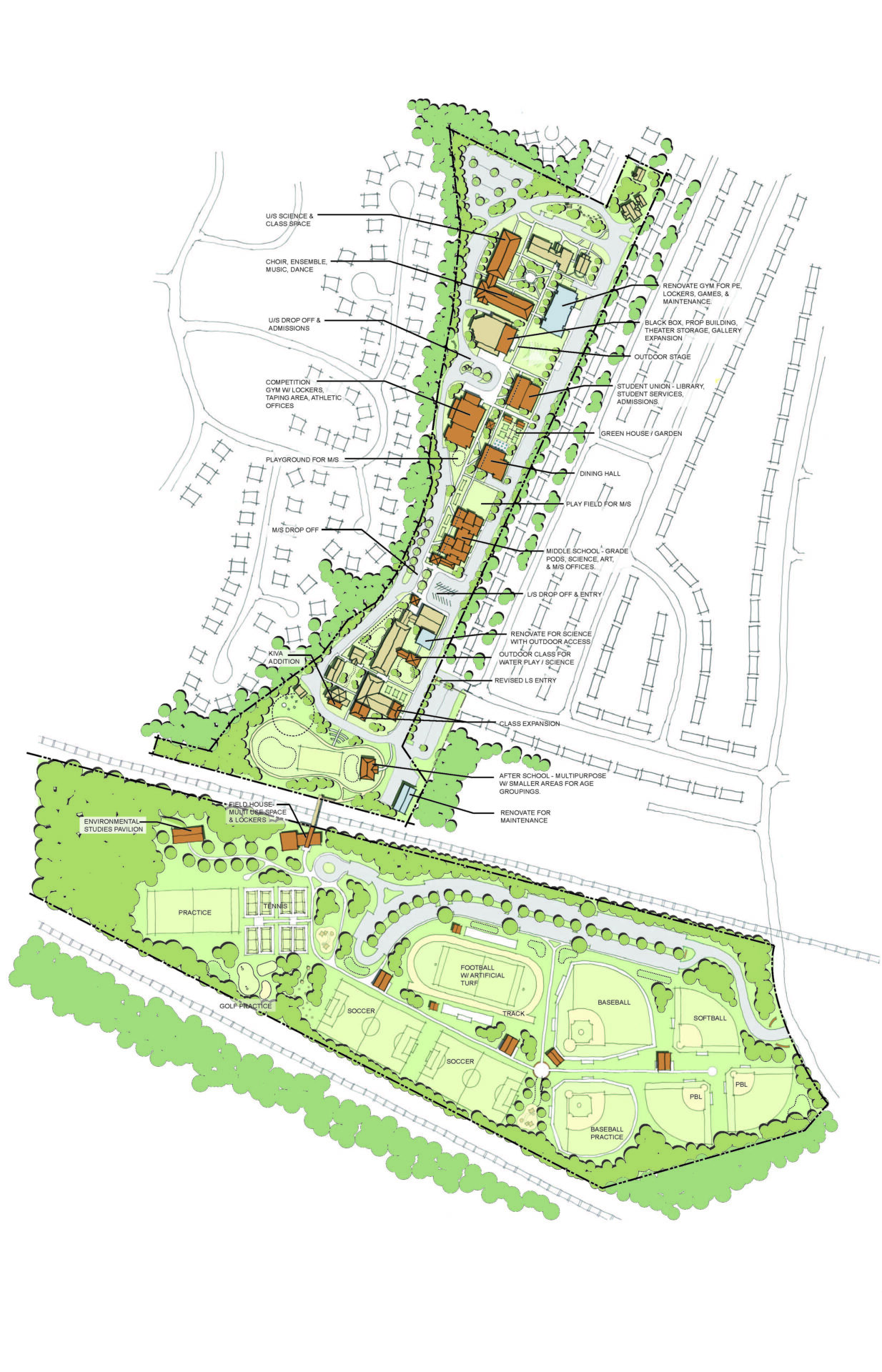
Since its founding in 1965, Hammond School has evolved into a thriving K–12 institution with nearly 1,000 students and a mission rooted in global education, environmental awareness, and experiential learning. As the campus expanded over time—across driveways, athletic fields, and even a railroad crossing—so too did the need for a more connected, cohesive environment that fully supports its distinctive curriculum and student journey.
In partnership with Little, Hammond developed a comprehensive Facilities Master Plan that addresses this complexity while providing a long-term roadmap for growth. The plan aims to unify the dispersed campus through new facilities, improved traffic patterns, and enhancements that align with the school’s identity and educational priorities.
A defining strategy of the plan is to create a “journey of discovery” across the campus—linking Lower, Middle, and Upper Schools through thoughtful spatial sequencing. A new middle school complex and a consolidated South Athletic Campus serve as key anchors in bridging physical and pedagogical gaps. With community input and a deep understanding of the school's values, the plan ensures that future development reflects Hammond’s commitment to academic excellence and real-world readiness.
Project Goals
-
Establish a long-term, mission-driven framework to guide Hammond School’s growth over the next decade.
-
Create a unified, walkable campus that strengthens connections between academic and athletic facilities.
-
Redesign circulation and parking to prioritize pedestrian safety and improve campus flow.
-
Develop new facilities to enhance science, arts, dining, athletics, and environmental education, while preserving open space.
-
Introduce high-impact projects such as a new science building, dining hall, music and media facilities, expanded athletic spaces, and a sustainability-focused environmental center.

A Visionary Guide for Campus Evolution
The result It balances near-term enhancements with long-term investments, positioning Hammond to remain competitive while preserving the close-knit, student-centered culture that defines its identity.
With the new middle school complex, reimagined circulation routes, and a future-focused program of facility upgrades, the plan not only unifies the campus physically, it also reinforces the school’s mission of preparing students for a complex, interconnected world. Through this framework, Hammond is well-equipped to inspire discovery, support academic excellence, and foster community well-being for generations to come.




